As pressure on land in London has become more acute in recent decades, the idea of stacking uses – and particularly building homes in the airspace above industrial activity – has attracted more and more interest.
It is in many ways logical. Industrial activity (by which I mean not just manufacturing things, but a range of activities – warehousing, wholesale and retail sales, training, waste processing – which would typically be seen on an industrial or trading estate) generally requires space at or close to ground level. It requires good access by delivery and customer vehicles; and those vehicles need space to manoeuvre and park. Homes are less in need of contact with the ground, as the many residential towers testify.
However, getting the two to co-exist is challenging. Industrial uses often give rise to noise, and sometimes air pollution, and they may operate at times when residential occupiers want quiet. Conversely, housing is what is classed a “sensitive receptor”, and although it can be detached from the ground, it requires good access for people (including mobility impaired people) and domestic deliveries.
Co-Existence
There have long been isolated examples of trying to make this union work, but not many. In general these “co-location” schemes have been vertically divided (i.e. housing and industry both sit on the ground, and they turn their backs to each other) and/or have involved student accommodation, which is generally thought to be less sensitive. However, in recent years, Southwark Council has been advocating true horizontal co-location in the Old Kent Road regeneration area.
It’s still early days, but several schemes have now not only been approved by the planning system, but are coming out of the ground.
180 Ilderton Road


180 Ilderton Road (images above) was the first. A pioneering scheme by 20:20 Capital and designed by Glenn Howells, hgh achieved 2,300sqm of flexible B1 workspace on 3 floors, and 84 flats above on 7 floors. It is being built by Optivo housing association, and is now close to completion.
Glengall Road


The same developer client then proceeded with a more ambitious scheme at Glengall Road/Bianca Road (two images above) close to Burgess Park. Designed by Geoff Brocklehurst at HKR Architects, this involved retaining some elements of an old canalside warehouse and otherwise redeveloping the site with two storeys and nearly 4,000sqm of employment space (approved for all the then B classes), and up to 13 storeys of housing above (181 homes). It is now being built by Southern Housing.
Former Leathams Building


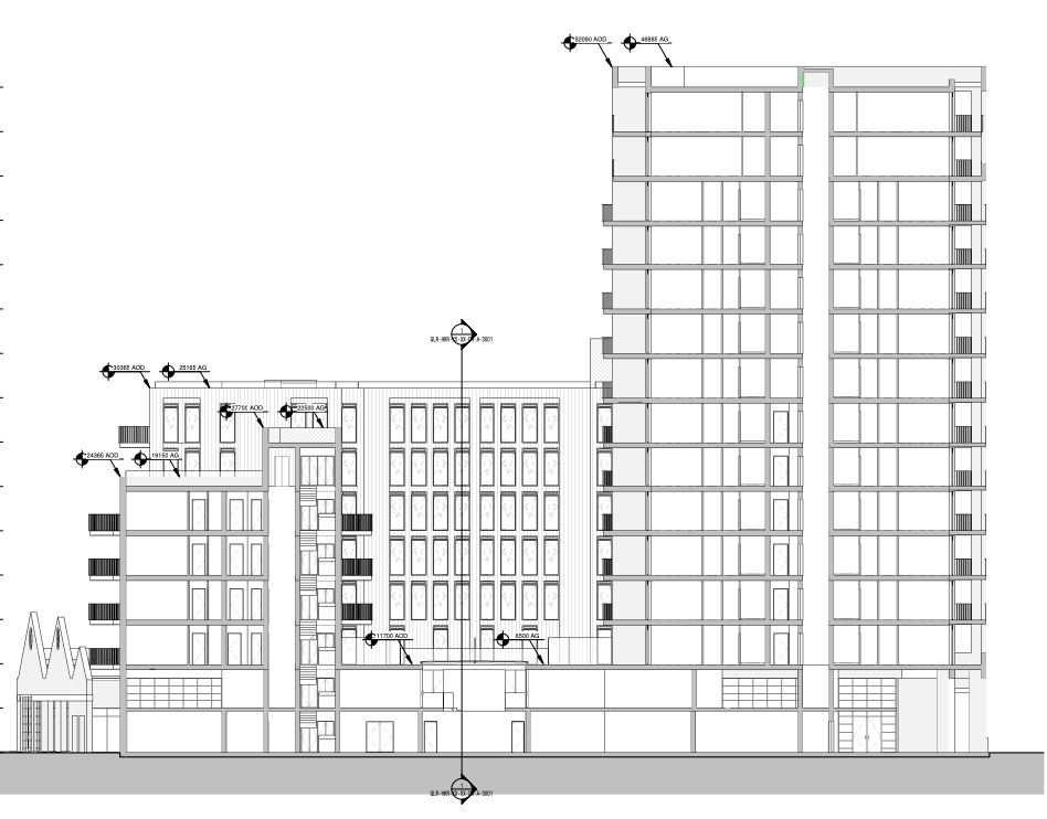
Back at Ilderton Road, agents spotted the potential for the former Leatham’s food distribution site to be redeveloped with modern warehousing accommodation, aimed at the “last mile” market. hgh brought in MacCreanor Lavington, who designed a scheme with 3,600sqm of flexible Class B8 space at ground level, and 253 homes above. The main building is 26 storeys.
This scheme, now known as Bermondsey Heights, is being developed by Barratt Homes.
Ilderton Wharf / Jewsons


Pioneering Scheme
Recognising that Ilderton Road is the first part of the Old Kent Road area properly to take off – not least because it has the best public transport links, and will be the best connected part of the regeneration area for some years now the Bakerloo Line Extension is delayed – 20:20 are now back with another pioneering scheme.
This one takes the Jewson builders’ merchant site at Rollins Street, and comprehensively redevelops it with new accommodation for Jewsons, and 170 homes in a 9/23/25 storey building on top. The architects are Stitch.
Southwark Council resolved last week (17th October 2022) to grant planning permission.
Stacking up
This all adds up to a most interesting urban regeneration case study. Time alone will tell how well these schemes work, but there has been no shortage of design skill employed, and it is very encouraging that three of the four schemes are already under construction.
Header image: Roberto Sorin on Unsplash
|
|
